Alterswohnungen Schiterberg
8451 Kleinandelfingen 2014

Projekt Information

Kleinandelfingen liegt als kleine Gemeinde im Zürcher Weinland und ist, neben der eindrücklichen Landschaft, geprägt durch traditionelle Riegelhäuser. Als einfache Häuser in komplexen Konstellationen zueinander gestellt, determinieren sie das ursprüngliche Zentrum des Dorfes. Sie zeichnen sich durch mächtige Dächer mit Ziegeldeckung und typischen, rot bemalten Holzkonstruktionen mit massiv gefüllten Ausfachungen aus.

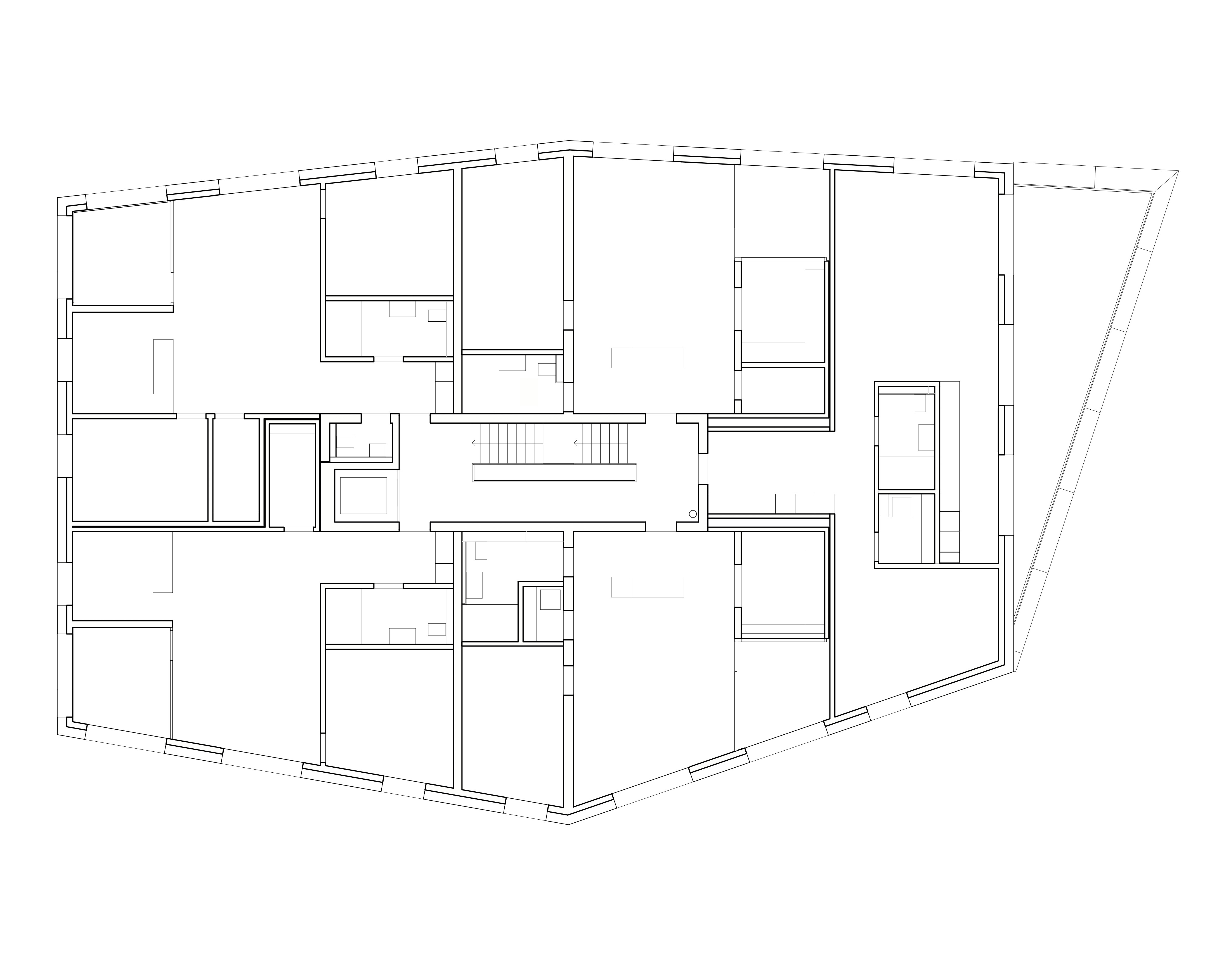
Als Ersatz für das bestehende Gebäude aus den 1970er-Jahren fügt sich das neue Haus mit Doppelfirst wie ein Puzzlestück in die Situation. Die beiden geknickten Fassaden teilen das Volumen in zwei analog proportionierte Gebäude und verankern sich harmonisch in die vorhandene Massstäblichkeit. Auf der Hauptseite zum Dorf, von der Hauptstrasse zurückversetzt, entsteht neu ein attraktiver öffentlicher Platz. Über diesen Dorfplatz erreicht man im Erdgeschoss die Gemeindeverwaltung.

Standort Kanzleistrasse 2
8451 Kleinandelfingen
Auftragsart Direktauftrag
Bauherr Genossenschaft Schiterberg
8451 Kleinandelfingen
Ausführung 2014
Bausumme 7.2 Mio
Partner

In Zusammenarbeit mit Hunkeler Hürzeler Architekten AG

Fotograf Roger Frei